
山东德通建筑工程有限公司
业务经理:13336355975
官网:www.dtgbc.com
地址:山东省聊城市东昌府区新区街道办事处香江二期东经13街20-21号
全钢钢板仓结构介绍 |
| 日期:2019-09-12 22:09 人气: |
|
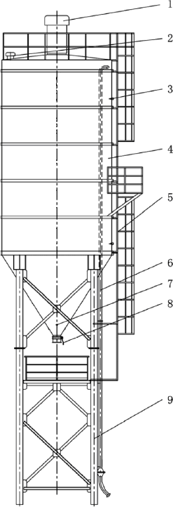
全钢钢板仓根据用途可以分为全钢散装仓和柱支撑钢板仓。1、全钢散装仓,全钢散装仓又可以分为全钢焊接仓和全钢卷板仓,只是筒体结构不一样,焊接仓是采用普板(Q235B)或者锰板(Q345B)为主材焊接而成;卷板仓则是完全由专用设备施工,在卷制过程中,钢板仓仓体外壁咬制成一条5倍于母材厚度、30毫米-40毫米宽的螺旋凸条,大大加强了仓体的承载能力,使钢板仓的整体强度、稳定性、抗震性优于其他钢板筒仓;全钢散装仓仓下面能装车走车也可以同时称重。2、柱支撑钢板仓,柱支撑钢板仓筒仓直径都比较小,锥斗下面高度小,可以接螺旋输送机或者皮带机等;柱支撑钢板仓结构主要是由仓体,支撑结构、吹灰管等部分组成。其结构如图所示:
柱支撑钢板仓结构示意图 如图 所示,第 1 部分为仓顶收尘机,第 2 部分为压力安全阀,第 3 部分为料位指示器,第 4 部分是仓体包括直段和漏斗段,第 5 部分是检修梯子,第 6 部分为吹灰管,第 7 部分为助流气垫,第 8 部分为手动蝶阀,第 9 部分为支腿。
全钢焊接散装仓
全钢螺旋卷板散装仓
柱支撑钢板仓 |
|
上一篇:钢板仓储料状态载荷计算
下一篇:水泥钢板仓内水泥结块的原因及几点预防措施 |
版权所有: 山东德通建筑工程仓储装备有限公司 技术支持:山东言鼎信息技术有限公司
钢板仓、钢板库的科技研发、设计、产品制造和工程施工是钢板仓、钢板库及配套设备的设计、施工及销售维护为一体的专业性企业。
友情链接: 山东德通建筑工程